Ferienwohnung Auszeit - Familie Wimmer

Quelle: Kleinwalsertal Tourismus eGen

Hausbild Winter
Hausbild Sommer
Haus Winter_2
Aussen_Winter
Winterwanderwege_2
Tiere - Haus aussen
Abendstimmung
direkt am Spazierweg
Sonnenuntergang
Mitten im Grünen
Haus Sommer
Mitten in der Natur
Ski - Abstellraum
Ski - Abstellraum
Ski - Abstellraum
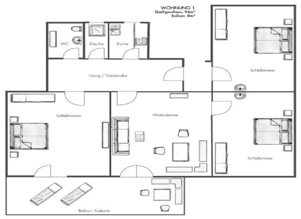
Grundriss Wo 1
Wohnzimmer mit Kochzeile Wo 1
Grundriss Wo 2
Wohnzimmer mit Balkon Wo 2
Grundriss Wo 3
Wohnzimmer Wo 3

Die Unterkunft

Zwischen Riezlern und Hirschegg liegt unser Haus die Auszeit. Ein sonniger Platz mitten im Kleinwalsertal. Viele Aktivitäten können direkt vom Haus aus gestartet werden. Ob Spaziergänge, Wanderungen, Mountainbiken im Sommer oder Schneeschuh wandern, langlaufen, rodeln, Skitouren im Winter ist alles möglich. Eine Rodelbahn kann zu Fuß erreicht werden. Der Start der Egg- und Wäldeleloipe liegt vor der Haustüre. Zwei Bushaltestellen sind in unmittelbarer Nähe. Mit dem Bus Nr. 3 gelangen sie bequem nach Riezlern und der Bus Nr. 5 bringt Sie zur Auenhütte. Ausganspunkt für Wanderungen ins Schwarzwassertal und Talstation der Ifen-Bahn. In ruhiger Lage mit viel Natur, Sonne und Freiheit, abseits vom Alltagslärm und trotzdem gut erreichbar, liegt unser Haus - die Auszeit.

Die Ferienwohnungen befinden sich im ersten und im zweiten Stockwerk und sind durch ein Stiegenhaus erreichbar. Direkt vom Parkplatz gelangen Sie ins Erdgeschoß wo sich der Skiraum befindet. Darin können im Winter Skier, Snowboards, Langlaufski und Rodel abgestellt werden. Im Sommer bietet er Platz für Kinderwagen, Wanderstöcke und Sonstiges. Hier bitten wir Sie auch ihre Ski- oder Wanderschuhe abzulegen. Für Fahrräder, Anhänger oder größere Sachen stellen wir Ihnen eine Garage zur Verfügung. Vor dem Haus liegt der Garten, der mit einem Kinderspielplatz und einer Feuerstelle zum Grillen ausgestattet ist. Tisch und Sitzgelegenheit sind ebenfalls vorhanden. Im ganzen Haus gibt es gratis W-lan.

Bettwäsche, Handtücher und Küchenwäsche bekommen Sie von uns. Auf Wunsch bekommen Sie ein Kinderbett.

Info

Höhe 1099 m
Betten gesamt 12

Kontakt

Auweg 2, 6992 Hirschegg, Österreich
+43 664 2664997
fewo-auszeit@gmx.at
fewo-auszeit.at

Anreise

Anfahrt

 

Weitere Informationen

Preise

Im ganzen Haus gibt es gratis W-lan, Bettwäsche, Handtücher und Küchenwäsche bekommen Sie von uns. Ein Abstellraum der im Winter für Skier, Skischuhe, Rodel und im Sommer für Bergschuhe, Wanderstöcke und KInderwagen dient ist vorhanden. Vor dem Haus befindet sich ein großer Parkplatz. Im Garten steht Ihnen ein Lagerfeuerplatz mit Grillrost und ein Standgrill sowie ein Tisch mit Sitzgelegenheit zur Verfügung. Die Balkone sind mit Tisch und Stühlen sowie Sonnenschirm oder Markise ausgestattet

  • Anrufen
  • E-Mail
  • Anfahrt